Historik
Byggnaden är ursprungligen uppförd efter ritningar daterade år 1898 och färdigställdes hösten 1899. Vid en besíktning i december 1898 skrev besiktningsmannen följande:
" Vid verkställd kontrollutstakning af ett under arbete varande boningshus af sten, som direktör Gustaf Palmqvist genom byggnadsnämndens resolution af den 21 september innevarande år (1898) erhållit tillstånd att uppföra å tomten Nr:7, efter 1810 års nummerordning, uti qvarteret Tjädern, inom Ladugårdslands församling, har befunnits, att detsamma, som är beläget i hörnet af Sibyllegatan och Tyskbagargatan samt upptager tomtens hela utsträckning mot dessa gator med undantag af det till 2 meter 50 centimeter afskurna hörnet, är anlagdt i rätta gatulinjerna samt å östra sidan med en bredd af 12 meter 3 centimeter i rätta gränslinjen mot tomten Nr: 6 och å norra sidan med en bredd af 14 meter 76 centimeter i rätta gränslinjen mot tomten Nr: 8, äfvensom att byggnaden är uppförd i hufudsaklig öferensstämmelse med den af byggnadsnämnden fastställda bottenplanritningen, det varder härmed till bevis meddeladt. Stockholms stadsingenjörskontor den 20 december 1898, undertecknat enligt uppdrag av Alfred Betzer".
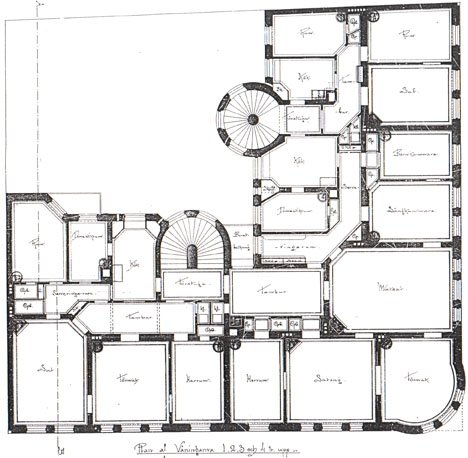
I september 1899 var byggmästare Anders Berglund klar med byggnationen och endast slutbesiktning återstod. Därefter påbörjades inflyttningen. På varje våningsplan fanns år 1899 endast tre lägenheter mot idag sex. Det fanns en fem- och en sjurummare med ingång från Sibyllegatan 40 där sjurummaren hade köksingång från Tyskbagargatan 7 och en trerummare med ingång Tyskbagargatan 7. Alla rum hade eldstäder i form av kakelugnar och öppna spisar medan köken hade vedspisar. Husets extriör var helt olik den idag med bl.a. en hörntornspira (se ritningen nedan).
Den 24 september 1934 fick direktör/ingenjören Arne Lundqvist såsom ägare till byggnaden tillstånd av Byggnadsnämnden att utföra en genomgripande ombyggnad för att skapa fler lägenheter och samtidigt modernisera den. Fem- och sjurummaren byggdes om till fem mindre lägenheter medan trerummaren i Tyskbagargatan fick behålla sin ursprungliga planlösning med endast några små inre förändringar. Alla eldstäder i rummen revs ut eftersom huset skulle få centralvärme. Väggar flyttades och nya rum och fler kök tillkom. Även stukaturer revs bort då det ansågs omodernt (endast tre rum fick behålla stukatur i taket). Garderober byggdes om till badrum och för att de skulle bli tillräckligt stora flyttades väggar i vissa sovrum. Köken försågs med gasspisar och rinnande vatten. Alla gamla fönster togs bort och i vissa fall flyttades även fönsteröppningarna och ersattes med fönster av senaste modell. Även hissar installerades så att man slapp gå i trappor. Husets extriör gjordes om varvid hörntornspiran revs. Ombyggnaden blev klar i slutet av augusti 1935 och slutbesiktning ägde rum i september 1935. Fastigheten var nu ett av de modernaste husen på Östermalm.
Fasadrenovering mot gården ägde rum 1961 och en mer omfattande fasadrenovering mot gatan 1969/70.
Nedan visas några bilder på det hus som revs för att ge plats för vår fastighet. Detta hus finns inte med på Stockholmskartan 1855 så det var ett ganska nytt hus som revs 1897. Kvarteret Tjädern hette 1863 kvarteret Djurgårdsbacken och fastighetsbeteckningen var Djurgårdsbacken 4. Likaså fanns inte namnet Tyskbagargatan utan gatan hette istället Ladugårdslands Tullgata. I Stockholmsarkivet har vi funnit ritningar på den gamla byggnaden, dock inte lika utförliga som 1898. Bilderna nedan är hämtade från Stadsmuseéts arkiv. Några bilder på själva ombyggnaden 1934/1935 och interiörbilder från lägenheterna innan de byggdes om har ännu inte hittats men de kanske dyker upp en vacker dag.
Foto taget från korsningen Sibyllegatan/Tyskbagargatan år 1894. Bilden visar den fastighet som revs för att ge plats för vårt hus. Sibyllegatan är här mycket smalare samt omgiven av Tyskbagarbergen.
Tyskbagargatan 7 f.d. Ladugårdslands Tullgata nr 14. Fotot taget i hörnan Sibyllegatan/Tyskbagargatan år 1895.
Sibyllegatan söderut sedd från Valhallavägen. Oljemålning av Alfred Bergström 1892.
Gårdsinteriör från Sibyllegatan 40 taget från Jungfrugatshållet i oktober 1897. Det är alltså vår gård vi ser men den ligger betydligt högre upp än idag. Revs för att ge plats för vårt hus.

Så här såg vår fastighet ut från början med ingången till Sibyllegatan 40 i mitten.
Ritningarna nedan visar hur våningsplanens såg ut med de stora lägenheterna. Den ena ritningen visar också hur det såg ut på vår gård och var utedassen låg.
Augusti 1898.
Våningsplan 1-4Augusti 1898 |
Bottenvåning
Augusti 1898
|
|
![]() |
![]() |
|
| Klicka för planlösning | Klicka för planlösning |






